Araba

Iruña Oka aprueba el proyecto del molino de Nanclares

Dará paso a una sala expositiva, servicios municipales y un espacio multiusos, distribuidos en sus tres plantas
El molino de Nanclares en Iruña Oka
El molino de Nanclares en Iruña Oka / Cedida

El Ayuntamiento de Iruña Oka ha aprobado, por unanimidad de todos los grupos políticos que integran la Corporación, el proyecto técnico que guiará la rehabilitación interna del molino de Nanclares. Ésta contempla la reforma del edificio, de modo que contará con tres plantas independientes que acogerán una zona expositiva, servicios municipales y un espacio multiusos.

La memoria del proyecto de ejecución estima el presupuesto de las obras en algo más de 776.000 euros y un plazo de ejecución de ocho meses, para todas las obras comprendidas en el proyecto, a contar a partir de la fecha de firma del acta de replanteo, con la cual darán comienzo los trabajos.

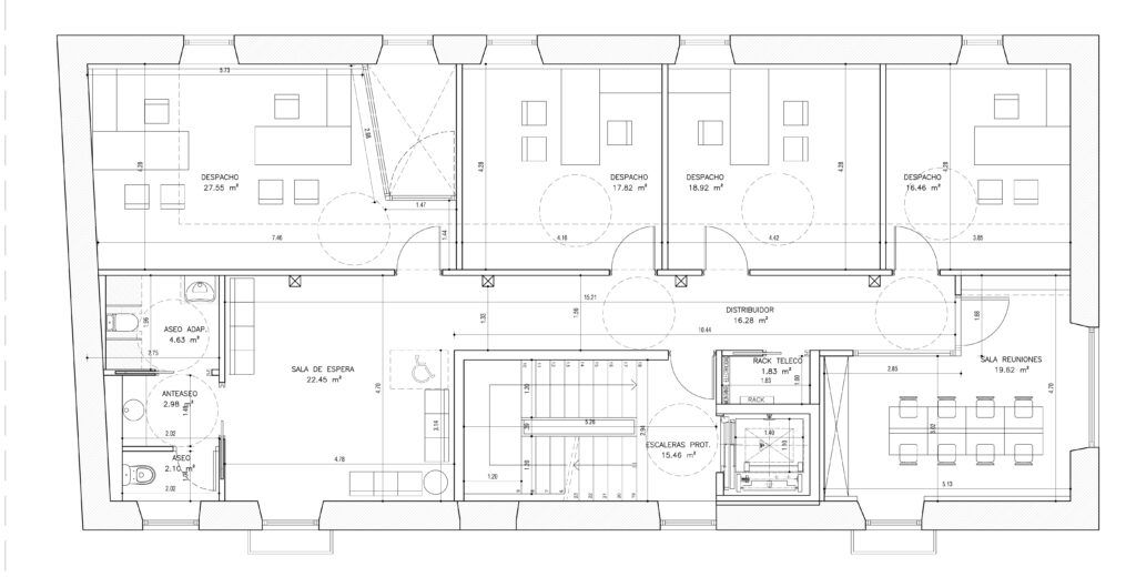
La primera planta quedará distribuida en cuatro despachos y una sala de reuniones

La primera planta quedará distribuida en cuatro despachos y una sala de reuniones Cedida

El alcalde de Iruña Oka, el socialista Miguel Ángel Montes, ha detallado que el proyecto prevé la habilitación de una primera planta diáfana (la baja) “en la que se ubicará un espacio expositivo”; mientras que la primera planta “estará destinada a dependencias municipales, incluyendo cuatro despachos administrativos, una sala de reuniones y una sala de espera para el personal municipal y la ciudadanía”.

Por último, se ha determinado que la segunda planta quede dividida en tres espacios de unos 50 metros cuadrados “que serán destinados a salas de reuniones o diversos usos que puedan necesitar las asociaciones del municipio”, ha matizado el regidor.

Liberar espacio 

La rehabilitación prevé también la inserción de una estructura metálica en el interior del edificio en la que se ubicarán los accesos y las comunicaciones verticales.

“Esta rehabilitación integral no solo supondrá recuperar un edificio histórico ubicado en el centro de la localidad, sino que también permitirá liberar espacio en el Centro Sociocultural Milagros González con el traslado de los despachos que en la actualidad se ubican en esta instalación municipal”, ha avanzado Montes.

El presupuesto municipal de este año, tiene reservados 100.000 euros para el arranque de la licitación de las obras que construirán las dependencias municipales.

Otros acuerdos

Por otro lado, se ha aprobado una modificación en el contrato de gestión de las instalaciones deportivas que permitirá ampliar el servicio del monitor en la sala de musculación y cardio. Dada la buena aceptación que está teniendo este servicio desde su implantación, el Ayuntamiento ha optado por su ampliación, por lo que, según se prevé en el pliego de condiciones del contrato de gestión, ofrecerá a la empresa adjudicataria una ampliación de 380 horas.

Otro cambio aprobado ha afectado a la RPT (relación de puestos de trabajo) del Consistorio para la dotación del puesto de secretario interventor en la que se fija el requisito de disponer de un perfil lingüístico 3 sin fecha de receptividad. Asimismo, se ha acordado declarar desierto el expediente de enajenación de parcelas en el SAU-V1 de Víllodas, toda vez que no se ha registrado ninguna oferta para las cinco fincas que se pretende enajenar. Por último, los grupos dieron su visto bueno a un expediente de crédito por valor de 534.079 euros destinado a regularizar diversas partidas de mantenimiento y servicios municipales.

2026-01-09T06:01:03+01:00
En directo
Onda Vasca En Directo